Address: 4084 Halifax Drive, PORT ORANGE, FL 32127
Description
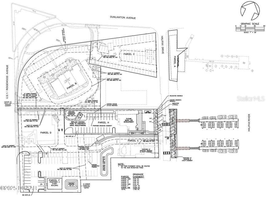
0.66+/ Acre Riverfront Development with Numerous Possibilities on the Halifax River. Prime riverfront site within the Catfish Commons Planned Commercial Development, offering Mixed Use Center (MXU) zoning and flexible development potential: Residential: Up to 8 long or short term rental units Marina: Zoned for 12 boat slips for motorized or non motorized vessels with the City of Port Orange Event Venue: Ideal for waterfront gatherings Mobile Commercial: Flexible use options for pop up or mobile businesses Additional Highlights Max building height: 45 feet Flexible setbacks and zero lot line development allowed Dock access permitted beyond 100 feet (subject to approvals) 6 dedicated marina parking spaces on site City development review and permit fees waived for 5 years (Excludes impact/stormwater fees) Cross access easements in place Strategic Location
Part of the vibrant Catfish Commons a growing mixed use destination with restaurants, retail, and residential components. Total of 220 shared parking spaces across the PCD, supporting seamless integration with neighboring businesses.
Ideal for Developers, Hospitality, or Waterfront Investors
Unlock the potential of this rare riverfront parcel perfect for mixed use, waterfront dining, boutique lodging, or marina based operations.
0.66+/ Acre Riverfront Site in Catfish Commons with MXU zoning
Flexible Use: Up to 8 rental units, 12 marina slips, or event/mobile business potential
Generous Build Options: 45' height, flexible setbacks, zero lot line allowed
City permit/review fees waived for 5 years (excludes impact/stormwater fees)
220 shared parking spaces across the PCD
0.66+/ Acre Riverfront Development with Numerous Possibilities on the Halifax River. Prime riverfront site within the Catfish Commons Planned Commercial Development, offering Mixed Use Center (MXU) zoning and flexible development potential: Residential: Up to 8 long or short term rental units Marina: Zoned for 12 boat slips for motorized or non motorized vessels with the City of Port Orange Event Venue: Ideal for waterfront gatherings Mobile Commercial: Flexible use options for pop up or mobile businesses Additional Highlights Max building height: 45 feet Flexible setbacks and zero lot line development allowed Dock access permitted beyond 100 feet (subject to approvals) 6 dedicated marina parking spaces on site City development review and permit fees waived for 5 years (Excludes impact/stormwater fees) Cross access easements in place Strategic Location
Part of the vibrant Catfish Commons a growing mixed use destination with restaurants, retail, and residential components. Total of 220 shared parking spaces across the PCD, supporting seamless integration with neighboring businesses.
Ideal for Developers, Hospitality, or Waterfront Investors
Unlock the potential of this rare riverfront parcel perfect for mixed use, waterfront dining, boutique lodging, or marina based operations.
0.66+/ Acre Riverfront Site in Catfish Commons with MXU zoning
Flexible Use: Up to 8 rental units, 12 marina slips, or event/mobile business potential
Generous Build Options: 45' height, flexible setbacks, zero lot line allowed
City permit/review fees waived for 5 years (excludes impact/stormwater fees)
220 shared parking spaces across the PCD
Features
Building and Construction
Covered Spaces: 0.00
Living Area: 5626.00
Garage and Parking
Garage Spaces: 0.00
Open Parking Spaces: 0.00
Utilities
Carport Spaces: 0.00
Cooling: Central Air
Road Frontage Type: City Street
Finance and Tax Information
Home Owners Association Fee: 0.00
Insurance Expense: 0.00
Net Operating Income: 0.00
Other Expense: 0.00
Tax Year: 2025
Other Features
Country: US
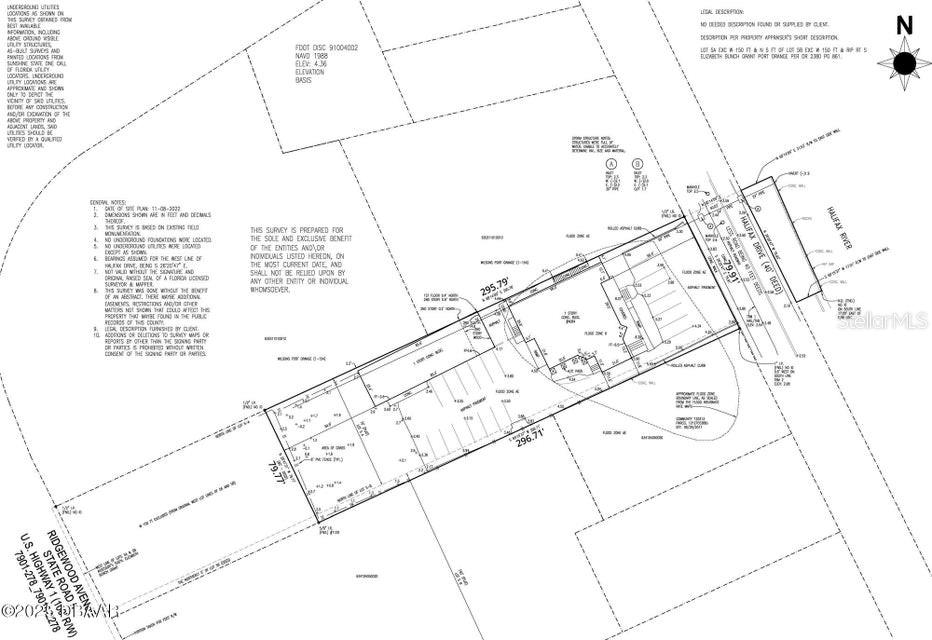
Legal Description: LOT 5A EXC W 150 FT & N 5 FT OF LOT 5B EXC W 150 FT & RIP RIGHTS ELIZABETH BUNCH GRANT PORT ORANGE MB 3 PG 128 PER OR 2380 PG 0861 PER OR 8335 PG 4257
Area Major: 32127 - Port Orange/Ponce Inlet/Daytona Beach
Wow! Excellent 1031 exchange property with major potentials for income or development. Excellent cap rate!! Investor alert! Great location on high traffic us hwy 1/s ridgewood. . 0. 9 acre land with t
Subject real estate entails two commercially zoned (mu) parcels encompassing ~1. 66 acres maintaining a combined ~310 lf of road frontage on the east side of us hwy 1 (s ridgewood ave) in the harbor o
New Listings & Price Reduction Updates sent directly to your email
Create Your Own Property Search saved for your return visit.
"Like" Listings and Create a Favorites List
* NOTICE: By creating your free profile, you authorize us to send you periodic emails about new listings that match your saved searches and related real estate information.If you provide your telephone number, you are giving us permission to call you in response to this request, even if this phone number is in the State and/or National Do Not Call Registry.